Back to Results

Lot 194, Norlongga Boulevard, Noarlunga Downs

Exclusive Offer with Shared Equity

Shared Equity Mandatory

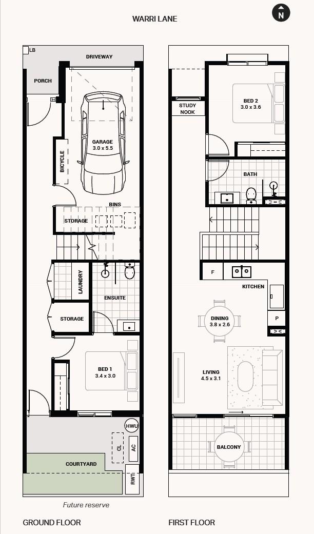
Bedrooms
2
Bathrooms
2
Carports
1

Land Size

86m2

Floor Area

144m2

Type of Sale

House and land package
Share on socials

Contact Sales Agent

Tiarna Clarke
Taarnby
[email protected]
0461116116

Sale Price $615,000 with up to 25% Shared Equity Option*

*This property is only available with HomeStart’s Shared Equity Option

Live Life Your Way at Noarlunga

Imagine waking up in a community where the river, beach, shopping, and nature are all within easy reach. Noarlunga offers the perfect balance of coastal charm and urban convenience – just 30 minutes south of Adelaide’s CBD. Spend weekends exploring stunning beaches, walking trails, and vibrant cafés, or enjoy the ease of major retail hubs and transport links right at your doorstep. It’s a lifestyle designed for connection, relaxation, and choice.

Key Features

•    Desirable street corner allotment 
•    Colorbond fencing and letterbox 
•    Black and stainless steel appliances 
•    Custom-designed joinery throughout 
•    Wall-mounted split-system air conditioning to living room 
•    Timber laminate flooring and plush carpets in bedrooms 
•    Built in robes to all bedrooms 
•    Spacious first floor balcony 
•    Solar included 
•    Choice of colour schemes, selections and upgrades available 

Whether you’re looking for a house and land package or a vacant allotment, this is your opportunity to join a growing community close to beaches, parks, shopping, schools, and transport.

Prospective purchasers are invited to submit a Notice of Intent to express their interest in securing a house and land package or vacant land allotment.

HomeStart Finance

Everyone deserves the chance to own their home and for 35 years HomeStart have been helping South Australians achieve this dream. They understand that everyone’s circumstances are different which is why they have a range of innovative, low deposit loans and additional options that cater to the diverse needs of our community. Eligibility criteria, terms and conditions apply. Fees and charges are payable. 

HomeSeeker SA

This property is available through the state government’s HomeSeeker SA program, which provides eligible buyers the opportunity to purchase fixed price homes without competing with property investors. Check if you’re eligible for HomeSeeker SA at homeseeker.sa.gov.au/eligibility. Please note that the properties listed on HomeSeeker SA may be offered for sale by third-party vendors. The inclusion of a property on this website does not constitute any recommendation, endorsement or guarantee by the Government of South Australia regarding the property or the terms of any sale. The Government of South Australia is not responsible for the performance of any agreements with third-party vendors and is not a party to any disputes arising from such agreements. It is strongly recommended that you seek independent legal advice before entering into any transaction in relation to a property listed on this website.

Location

-35.152023321733, 138.50133618678

Register your interest with the Sales Agent

Property: Lot 194, Norlongga Boulevard, Noarlunga Downs

By submitting your registration of interest you agree that your details will be shared with the sales agent and they will contact you about this property.