Back to Results

Lot 4, 11 Columba Street, Morphett Vale

Under Offer

Exclusive Offer with Shared Equity

Shared Equity Mandatory

Bedrooms
3
Bathrooms
1
Carports
1

Land Size

205m2

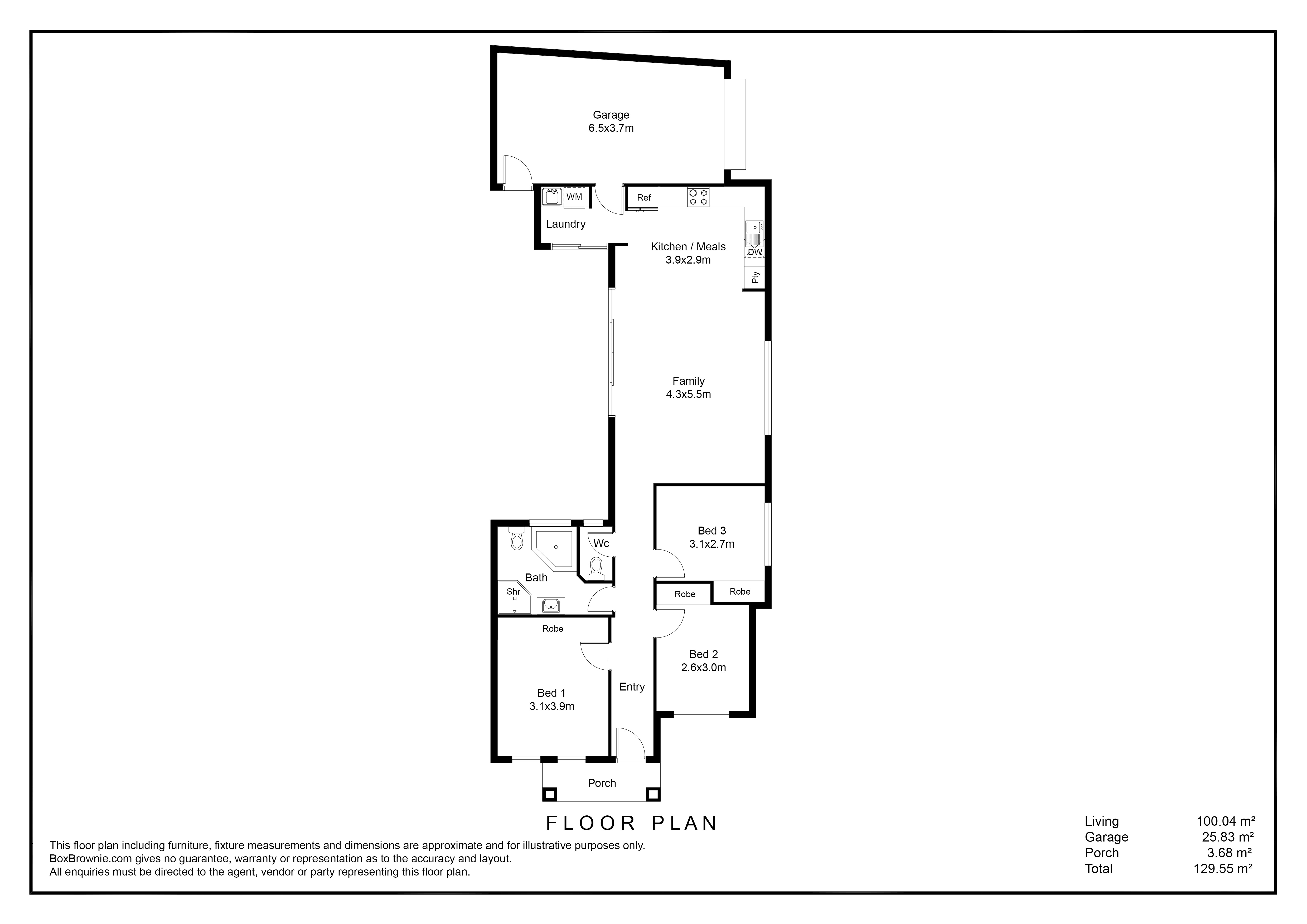
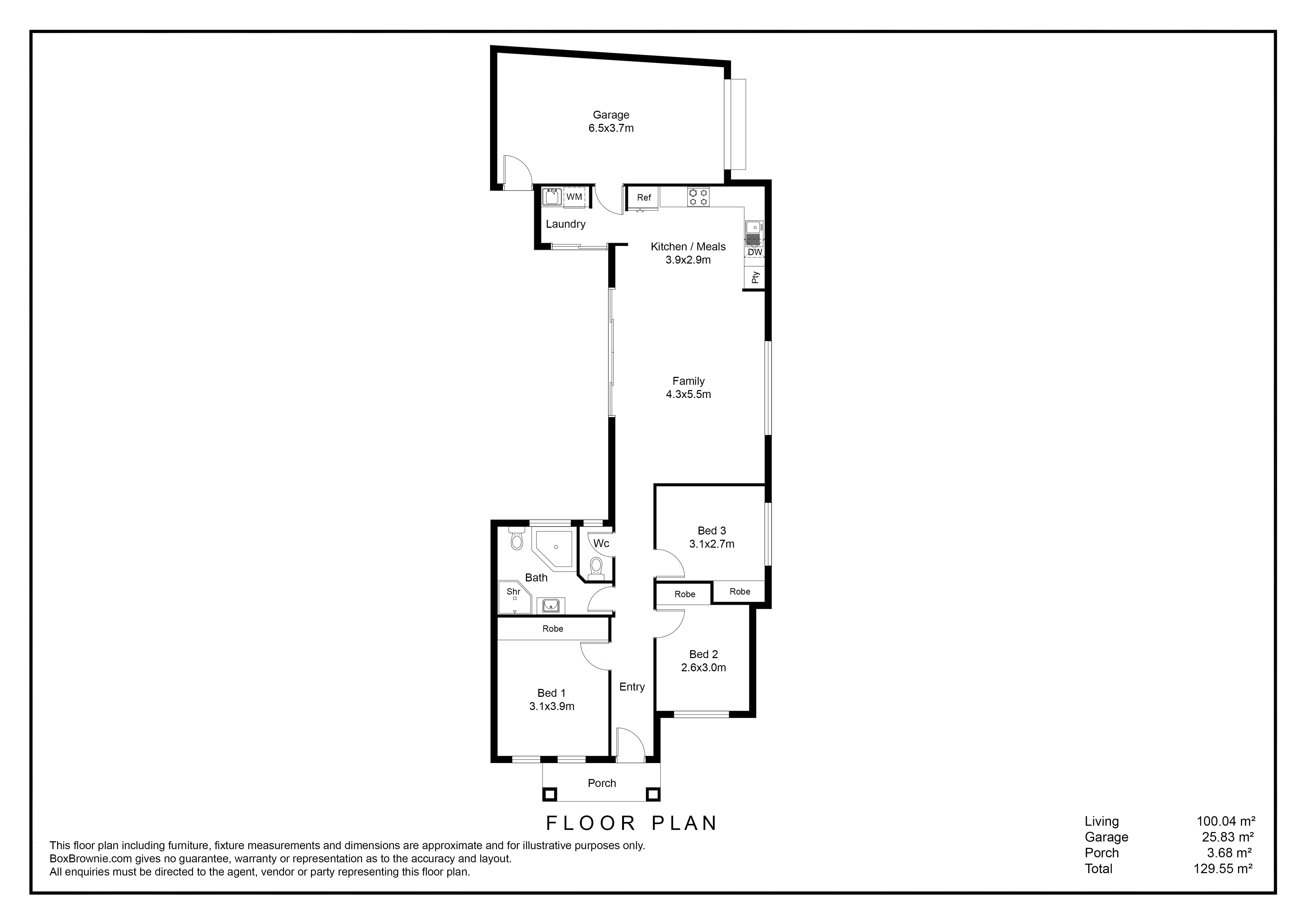
Floor Area

125m2

Type of Sale

Off-the-plan
Share on socials

Contact Sales Agent

Vanessa Ciarla
RentCo
[email protected]
0423588987

Sale Price $675,000 with Shared Equity*

*This property is available with HomeStart’s Shared Equity Option or the Australian Government's Help to Buy Shared Equity Scheme (subject to eligibility).

Own your own, brand new home!


Here is your opportunity to secure one of four brand new homes in the heart of Morphett Vale. Perfectly designed for modern living, these homes are part of South Australia’s Affordable Housing Program, giving eligible buyers the chance to own their own home in a thriving suburban community.

Offering approx. 120sqm of internal living space, thoughtfully laid out to maximise comfort and functionality. With two well-sized bedrooms, there is plenty of space for families or first home buyers seeking an easy-care lifestyle. The master and secondary bedrooms include built-in robes, providing convenient storage without compromising style.

The light-filled open-plan living and dining area flows seamlessly to the kitchen, creating a welcoming space for both relaxing and entertaining. The contemporary kitchen is finished with quality appliances, ample storage, and sleek benchtops, making it the perfect hub of the home.

Enjoy peace of mind with a secure single garage that includes internal access, offering both convenience and security. Built with low-maintenance living in mind, these homes are ideal for those who want to enjoy a modern lifestyle without the upkeep of a large property.

Set in the sought-after suburb of Morphett Vale, these homes place you close to everything. Local shops, schools, cafes, and public transport are just minutes away, and the beautiful southern coastline is only a short drive. Whether you’re enjoying a weekend outing along the coast, local cafes, or simply the ease of having all amenities nearby, these homes deliver the best of suburban living.

As part of the Affordable Housing Program, these homes are available exclusively to eligible buyers, helping more South Australians achieve their dream of home ownership.

  • Community Titled 
  • Turn Key Construction with Landscaping Included 
  • Private Rear Courtyards
  • Contemporary Finishes Throughout
  • Quality Construction
  • 7 Star NatHERS Energy Rating
  • Sought After Location
  • Light Filled Open Plan Living
  • Ducted R/C Air Conditioning
  • Laminate Flooring + Carpeted Bedrooms
  • Lock Up & Leave Lifestyle 
     

HomeStart Finance

Everyone deserves the chance to own their home and for 35 years HomeStart have been helping South Australians achieve this dream. They understand that everyone’s circumstances are different which is why they have a range of innovative, low deposit loans and additional options that cater to the diverse needs of our community. Eligibility criteria, terms and conditions apply. Fees and charges are payable. 

Help to Buy

The Australian Government’s Help to Buy Scheme is a new shared equity initiative designed to support more Australians to buy a home. If you’ve saved what you can but are still a little short of being able to buy a home that meets your needs, Help to Buy may be able to bridge the gap. Whether you're a first-time buyer or someone returning to home ownership, Help to Buy offers support to secure a place to call home. Eligible home buyers can apply through one of the participating lenders listed on the Help to Buy website. 

HomeSeeker SA

This property is available through the state government’s HomeSeeker SA program, which provides eligible buyers the opportunity to purchase fixed price homes without competing with property investors. Check if you’re eligible for HomeSeeker SA at homeseeker.sa.gov.au/eligibility. Please note that the properties listed on HomeSeeker SA may be offered for sale by third-party vendors. The inclusion of a property on this website does not constitute any recommendation, endorsement or guarantee by the Government of South Australia regarding the property or the terms of any sale. The Government of South Australia is not responsible for the performance of any agreements with third-party vendors and is not a party to any disputes arising from such agreements. It is strongly recommended that you seek independent legal advice before entering into any transaction in relation to a property listed on this website.

Location

-35.131766811174, 138.5084019

Register your interest with the Sales Agent

Property: Lot 4, 11 Columba Street, Morphett Vale

By submitting your registration of interest you agree that your details will be shared with the sales agent and they will contact you about this property.